Via Lodovico il Moro 57
20143, Milano (MI)
ITALIA
Phone:+39 3473026801
Email: info@solido-studio.it
Residenziale Privato
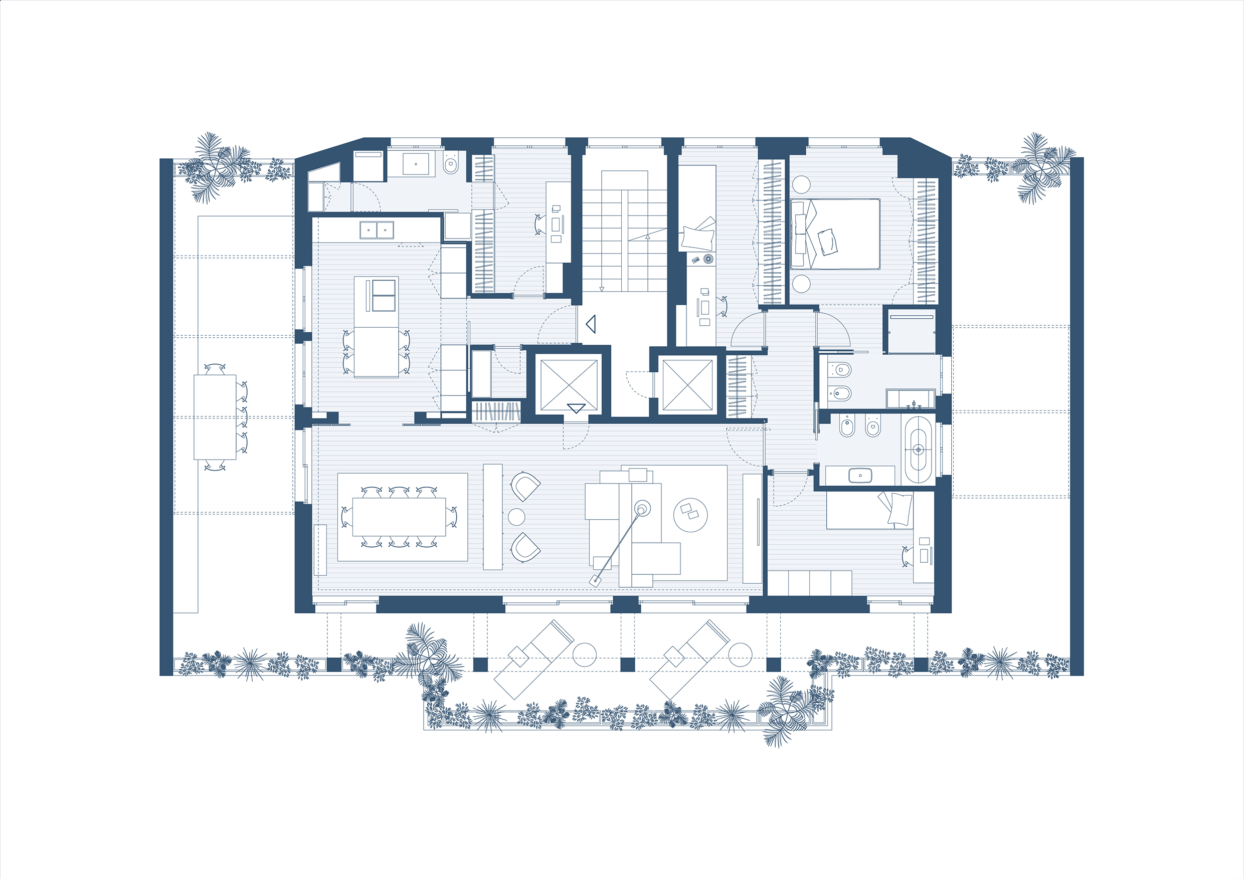
Il progetto prevede una completa riorganizzazione degli spazi attraverso una planimetria a ferro di cavallo, creando una vasta zona giorno con un doppio soggiorno collocato al centro, diventando così il cuore pulsante della casa.
Un ampio terrazzo che avvolge l'intera abitazione funge da prolungamento degli spazi interni principali, come la cucina, la zona giorno e la zona notte.
Particolare attenzione è dedicata ai passaggi tra le diverse zone della casa, con l'utilizzo di divisori ampi e vetrate tra la zona giorno e la cucina, nonché di elementi a scomparsa tra la zona giorno e la zona notte, come l'impiego di bilici che enfatizzano il passaggio tra le due aree.
La cura dei dettagli si riflette nell'uso di scuretti tra pareti e pavimenti, tagli nei controsoffitti per funzioni tecniche, come illuminazione e gestione dell'impianto di condizionamento, e nell'utilizzo di comandi scenografici personalizzati per gestire un sofisticato sistema domotico della casa.
Particolare enfasi è posta anche sull'uso dei materiali, con l'impiego di resine cementizie per uniformare gli ingressi della casa e l'utilizzo di pietre e marmi per elementi come il top dell'isola cucina, la vasca e la doccia dei bagni. L'insieme riflette una progettazione attenta e raffinata, con un focus evidente sulla funzionalità e sull'estetica contemporanea.











